Rif: IMMO-54293796
CALDOGNO
VICENZA
Porzione di immobile ad uso artigianale-commerciale costituita da tre unita' immobiliari. Le tre unita' sono così costituite:
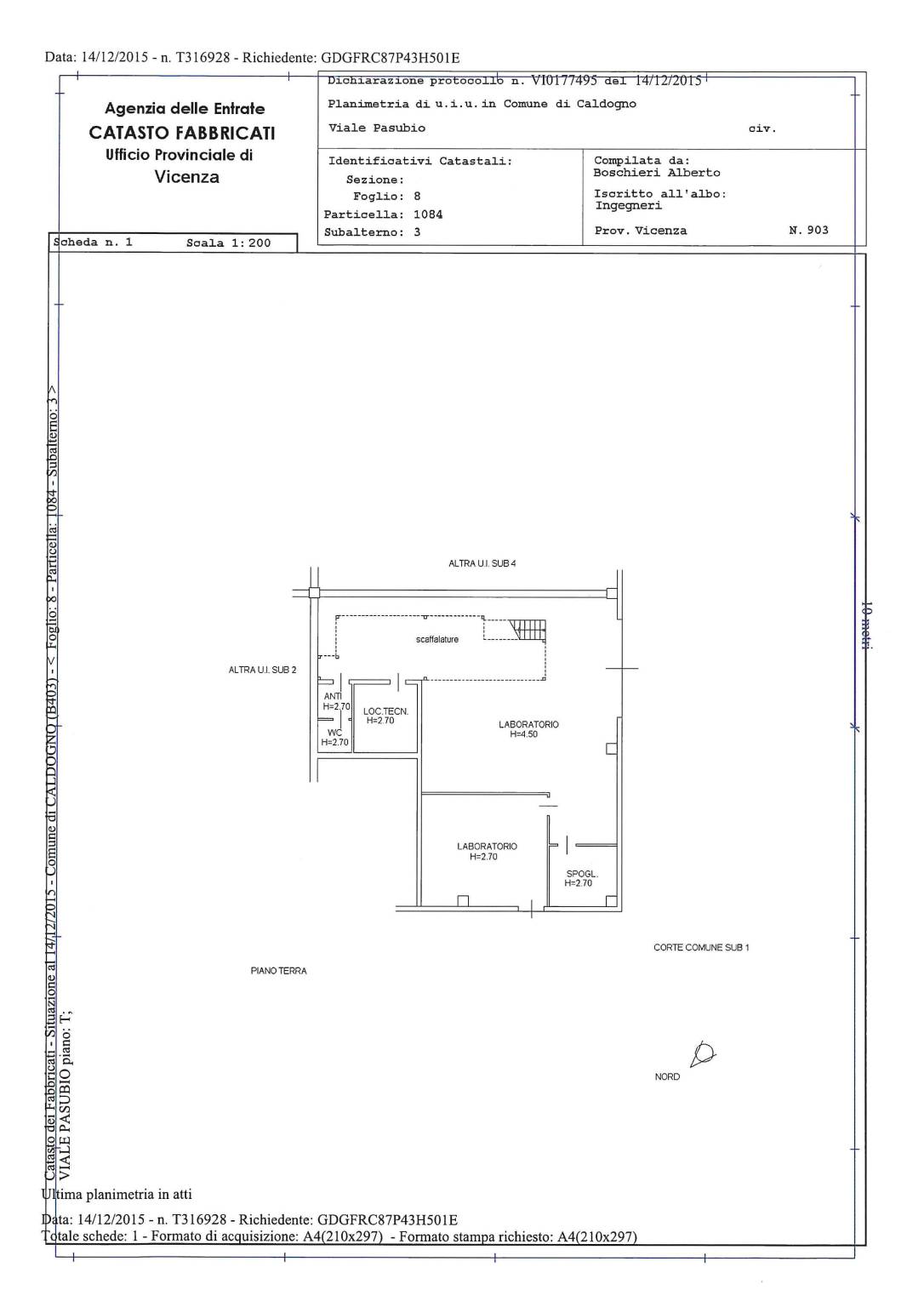
1)sub 3: laboratorio al piano terra di 186 mq
2)sub 5: magazzino al piano terra di 215 mq
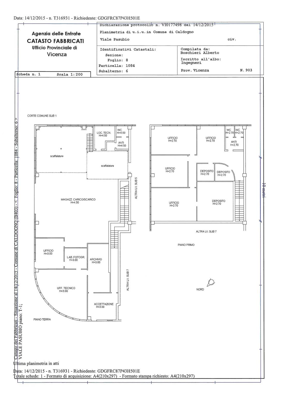
3)sub 6: uffici e magazzino al piano terra di 402 mq e uffici e deposito a piano primo di 206 mq.
Tutte le unita' hanno accesso dall'area scoperta, comune anche ad altre unita', che circonda il fabbricato, attualmente le unita' sub 5 e sub 6 sono comunicanti internamente.
Il fabbricato e' costruito con tipologia industriale con pannelli prefabbricati in calcestruzzo alleggerito, solaio intermedio e di copertura costituito da prefabbricati in cemento armato precompresso.
Tutti i laboratori hanno altezza interna di 4,50 mt
Si valuta anche la vendita frazionata dei subalterni
NUMERO VERDE: 800.912.936
REF. ARCH. PAGNOTTI
1)sub 3: laboratorio al piano terra di 186 mq
2)sub 5: magazzino al piano terra di 215 mq
3)sub 6: uffici e magazzino al piano terra di 402 mq e uffici e deposito a piano primo di 206 mq.
Tutte le unita' hanno accesso dall'area scoperta, comune anche ad altre unita', che circonda il fabbricato, attualmente le unita' sub 5 e sub 6 sono comunicanti internamente.
Il fabbricato e' costruito con tipologia industriale con pannelli prefabbricati in calcestruzzo alleggerito, solaio intermedio e di copertura costituito da prefabbricati in cemento armato precompresso.
Tutti i laboratori hanno altezza interna di 4,50 mt
Si valuta anche la vendita frazionata dei subalterni
NUMERO VERDE: 800.912.936
REF. ARCH. PAGNOTTI
Consistenze
| Descrizione | Superficie | Sup. comm. |
|---|---|---|
| Principali | ||
| Laboratorio - piano terra | 186 Mq | 186 Mqc |
| Laboratorio - piano terra | 215 Mq | 215 Mqc |
| Laboratorio - piano terra | 402 Mq | 402 Mqc |
| Ufficio - 1° piano | 206 Mq | 206 Mqc |
| Totale | 1.009 Mqc | |






